Phase One of our exciting new development is launching in Summer 2025, bringing a dynamic blend of commercial and residential space to the heart of Main Street in Shediac—just minutes from the entrance to Parlee Beach. This thoughtfully designed mixed-use building will feature a ground-floor commercial unit available for rent, ideal for retail or professional services, offering excellent visibility and high foot traffic.
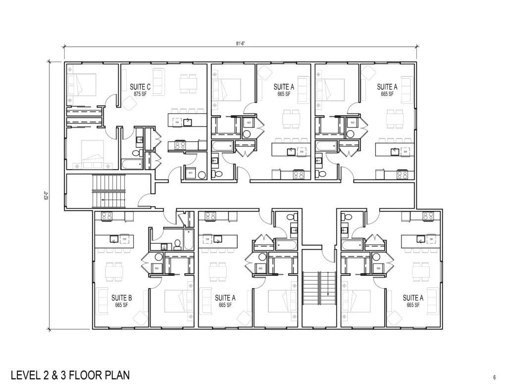
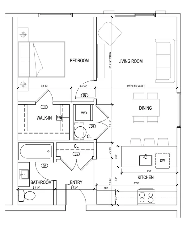
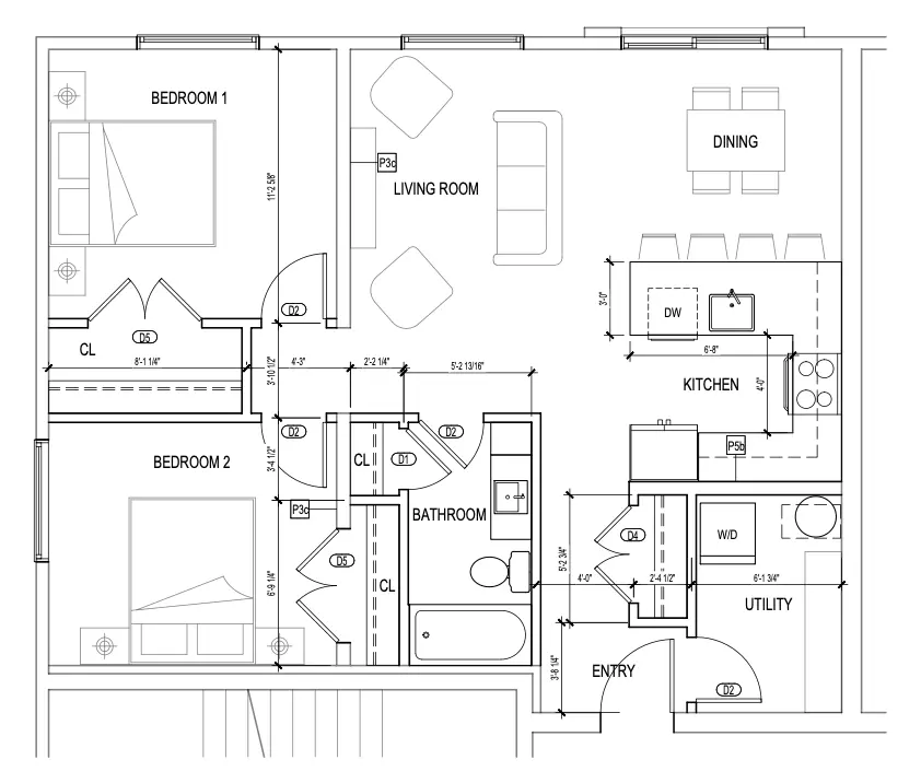
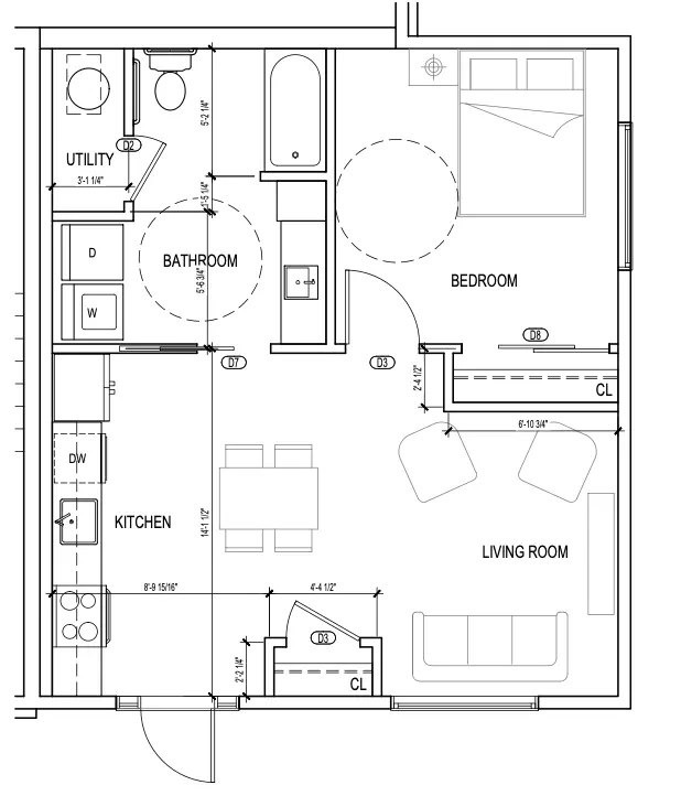
The residential component includes 13 modern rental units: one accessible one-bedroom unit on the ground floor, and 12 one- and two-bedroom units above—each designed for comfort, convenience, and a modern coastal lifestyle. Leasing opportunities for both commercial and residential spaces will open in early 2026.
Looking ahead, Phase Two will introduce three additional apartment buildings, each with 18 rental units offering a mix of one- and two-bedroom layouts. This next phase will further expand and enhance this vibrant new community in the heart of Shediac.







